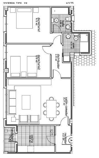
100.000 euros, ese número mágico que se ha hecho popular gracias a la crisis financiera chipriota. ¿Que significa esa cantidad en una gran área metropolitana europea como Madrid? permite comprarse una vivienda muy pequeña y cuyo estado de conservación debería ser objeto de verificación en el centro de Madrid o en zonas del fuerte crecimiento de la década de 1960. Pero si se quiere comprar algo más grande y nuevo, para alojar a la familia, esto sería un ejemplo de lo que se obtendría: 106 m2 (construidos, contando elementos auxiliares, garaje, trastero) en Valdemoro. La vivienda estaría a unos 600 metros de la estación de ferrocarril de cercanías, y de ahí en tren se tardarían unos 41 minutos hasta la estación de Sol, considerada generalmente el centro de Madrid. Y además, hay piscina en el edificio (no es tan tonto como parece cuando en agosto se pueden alcanzar fácilmente los 40 grados a la sombra…). Datos tomados de idealista.com esta semana.
100.000 euros, ese número mágico que se ha hecho popular gracias a la crisis financiera chipriota. ¿Que significa esa cantidad en una gran área metropolitana europea como Madrid? permite comprarse una vivienda muy pequeña y cuyo estado de conservación debería ser objeto de verificación en el centro de Madrid o en zonas del fuerte crecimiento…



Deja un comentario