
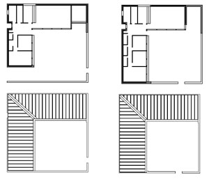
Jorn Utzon es conocido sobre todo por la Opera de Sydney, pero antes desarrolló una gran cantidad de obras de gran interés, incluida la vivienda (como su casa en Menorca). Las viviendas Kingo, construidas en 1956 en Helsingor, Dinamarca, son una de esas obras; hoy son denominadas romerhusene, es interesante visitar la página www.romerhusene.dk. Las 60 viviendas se agrupan sin llegar a formar hileras monótonas, sino como racimos de células cuadradas (casa en L cerrada por un patio) sobre un terreno en pendiente hacia un lago. Los patios se orientan hacia el sur, y el conjunto tiene unidad y variedad. Según parece, Utzon describió el conjunto como “flores en las ramas de un cerezo, cada una vuelta hacia el sol”.
Cada vivienda se asienta sobre una parcela de 15×15 metros (225 m2). La superficie edificada es de 104 m2. No es lo que entenderíamos como vivienda social, pero tampoco un conjunto de mansiones de lujo. En cierto modo, es una idea similar a la de los “clustered developments” que plantean los urbanistas en Estados Unidos como reacción a la extensión informe de la vivienda unifamiliar a través de la liberación de amplios espacios verdes comunes, pero con una calidad arquitectónica mucho mayor.


Deja un comentario